淮阳新网

查看: 109580|回复: 8

风水有缺陷:这些户型的房子,再便宜也不能买!

发表于 2020-9-17 14:33:36 | 显示全部楼层 |阅读模式 来自: 河南省焦作市 联通
本帖最后由 丑牛 于 2020-9-17 14:36 编辑

中国人自古喜欢天圆地方,四平八稳,忌讳尖角和凹凸不平,认为前者大气吉祥,后者凶险不吉。朱昆老师在阳宅风水实战课堂上反复提到地形方正的重要性,今天,我们要强调的是户型方正的重要性。


随便拿几张户型图过来,你会发现户型多种多样,甚至奇形怪状。

为什么要做这些不好的户型出来,其实很多时候并不是开发商不懂风水,更多时候是因为地只有这么多,如何在有限的土地上尽可能多做房子,这种强大的利益催生出了这些奇葩的建筑和奇葩的户型。

当然,也有不少是因为想追求大楼外形的新奇特而产生异型户型。世界上很多享誉世界的建筑师,他们研究的课题是如何建造出与众不同的地标型建筑,但笔者想说的是,奇特的建筑,也许适合做艺术殿堂、观光胜地或者是大型购物中心,但绝对不适合人长期居住。

因此,下面所罗列的这些户型,再便宜也不能买。

我们来看一些风水不好的大楼外形,这种外形直接影响到大楼里面的户型,很多奇葩的户型都由此而来。
1.jpg

图一
图一中奇形怪状的大楼,外形象斧劈刀切一样,本身给人不稳定的感觉,大楼里的户型少不了有很多的切面和尖角。
2.jpg

图二
为了追求与众不同而做出图二中这种怪异的大楼,外形看着都很容易起鸡皮疙瘩,里面的户型就可想而知了。
3.jpg

图三
4.jpg

图四
图三、图四这两组楼房非常常见,这种楼房大都地形狭长,没有条件做整齐的一栋栋排列整齐的高楼,所以就做成一个长排,为了尽量向阳,所以大楼的外形呈现出折来折去的形状,这种折角,导致大楼里面的户型奇形怪状。
5.jpg

图五
图五中这栋高楼有很多凸角、弧面、切角,奇葩的户型少不了。
6.jpg

图六
图六中,为了单层面积能多做房,房间都要兼顾有窗,所以采用这种错开式设计,满足了采光,看似非常合理,但锯齿煞由此而来。
那么,还有好的楼型吗?
7.jpg

图七
9.jpg

图八
8.jpg

图九
图七——图九中的这些整体方正的大楼,里面的户型一般都不容易有太多缺角、凸角和尖角。



讲完了大楼的外形,现在我们一起来看看各种奇葩大楼到底会催生出哪些奇葩户型呢?

1、位于夹角内的不见光的房子
10.jpg

图十
这种房子的特点是:不见阳光,压抑,人住在里面身体容易受影响,运势受到压制。
2016年就看过一例这样的风水,房子在老城区,夹角处的房间正好是儿子房,一家三口在这套房子里面住了二十来年,孩子从小体弱多病眼睛看不见(窗户被遮挡),女主人也常年身体欠佳;男主人事业打拼多年,没有一点起色。
11.jpg

图十一
12.jpg

图十二
图十一和十二这些夹角中的房子同样不符合风水的要求。

2、手枪型户型:(图十三——图十五)
有的户型整体形状像一个阿拉伯数字“7”,称手枪型屋,也称7字形或刀把型。这种户型严重缺角,主人易犯血光之灾。朱昆老师在实际勘察风水的时候,见过不少这样的户型,其中有大多数家庭在五年内都出过意外之灾。
13.jpg

图十三
14.jpg

图十四
15.jpg

图十五

3、锯齿式的户型(图十六——图十八)
16.jpg

图十六
17.jpg

图十七
18.jpg

图十八
锯齿形户型并不少见,这种户型的锯齿状外形犹如一把锯子,每天不停的在锯向这家人,如果再遇到卫生间位于锯齿上,或者房子主人的落宫也刚好在到这把锯子上,可以说,住进来就马上会破财生病,立竿见影,绝不迟疑。

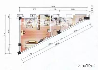
4、三角形的户型
三角形在风水中属于不稳定的形状,住在这种房子里,会导致人的肝火旺盛,爱发脾气,家庭不和睦,也很客易导致家人的运势、财运、情感、健康等下降。
19.jpg

图十九
21.jpg

图二十
22.jpg

图二十一

5、走廊式的户型
有的户型,形状狭长,长宽不成比例,就好像一个长走廊,宽度不够,这样的房子,最容易犯长枪煞。建议根据实际情况用玄关或帘子隔断化解。
20.jpg

图二十二
23.jpg

图二十三

6、空气不流通的户型
两梯三户、四户或更多户的楼房,通常两边的端户是南北通透型户型,而中间户都是南北不通透的户型,通常要打开大门,屋内空气才能流通。如果买了这种户型,化解的方法就是把大门装成双层大门,一层是透风的,一层是密封的,平时把不透风的那层门打开,让屋内形成南北空气流通就可以了。
24.jpg

图二十四
25.jpg

图二十五

7、复式层带尖顶的户型
不少顶层的复式楼房或洋房都会赠送房顶,但这些房顶通常尖角众多。例如下图所示:
27.jpg

图二十六
26.jpg

图二十七
这种尖顶屋我不赞成装修成这种书房甚至卧室,因为人在这种尖顶下,有一种压迫感,根本无法静心读书、工作和休息。这种空间比较适合用来做储物间、衣帽间和客房,因为客人来了,短暂的住一两天是没有太大影响的。另外,如果顶部是等腰三角形,把它顶部的尖角打磨处理成蒙古包的圆顶,对这种尖顶不失为一种化解的好方法。打磨完尖角后空间开阔了许多,这种空间就可以用来做活动室和房间,效果非常不错,朋友们如果家里是这种风水,可以一试。

8、肿瘤房
这里的“肿瘤”是指在好端端的户型边缘多出一个长廊、方块或凸角,极像正常人的身体长出一个肿瘤。不少人以为这是开发商多送的面积,乐得美滋滋的,殊不知长久住在这种风水当中,真的是极易患肿瘤的。所以,看到这种户型,必定果断不要。
28.jpg

图二十八
29.jpg

图二十九
30.jpg

图三十

9、平层大户型
不要以为越贵的房子风水一定好,买到上风上水的好房,最重要的是要具备风水常识。下面一组大户型平面图,从图中就能看出,这种房子因为单层面积太大,内部像个迷宫,通风是个大问题,住这种房子必须常年开空调,不然内部的气流很难形成对流。风水风水,风就是指空气的流通。好的空气进不来,污浊的空气排不出去,这种房子,无论多贵,都谈不上好风水。
31.jpg

图三十一
32.jpg

图三十二

10、绝对不能买的各种怪异户型:希望朋友们能举一反三,凡是这些怪异的户型,一定不能买入,否则后面一定有各种意外灾祸等着你和你的家人。(图三十三——图三十六)
33.jpg

图三十三
34.jpg

图三十四
36.jpg

图三十五
35.jpg

图三十六

11、卫生间位于中心位置的房子
房子的中心是一个极其重要的位置,相当于一个人的心脏,这么重要的位置,如果刚好卫生间处于这个位置,那么相当于房子的心脏受污。同样的道理,房子的中心位置也不适合是厨房。房子的中心位置是财位,越开阔整齐越好。
房子中心受污的风水虽然不多见,一旦出现,对整个家庭的影响巨大,住在这种房子里,全家人的财运、健康、事业…可以说任何美好的愿望都无法实现,买房一定要避开这种风水。
有的朋友就会问了,这么多种煞气和禁忌,都没有信心看下去了,还会有风水好的户型吗?下面为你呈上一组比较好的户型图(图三十七——图三十九),供大家参考。
买房是中国人的头等大事,一定要有耐心,更要有智慧,为自己,为家人选到一套旺健康、旺财运、旺姻缘,旺学业,顺风顺水的风水好楼。
37.jpg

图三十七
此户型有一个小小的缺角,但总体上都符合风水布局。
38.jpg

图三十八
39.jpg

图三十九
好的户型还有很多,但整体都是方正的,而且南北通透,没有明显的煞气。爱学习的网友,相信通过不断学习,你一定能买到风水好屋!

淮阳周口买房卖房都可以找我,风水上有不懂的也可以问我的16696792370(微信同号)
发表于 2020-9-17 15:15:36 | 显示全部楼层 来自: 河南省郑州市 联通
广州的小蛮腰广州塔
北京的大裤衩中信大厦
深圳的摩天大楼
这些大楼造型古怪吗?
回复 支持 反对

使用道具 举报

发表于 2020-9-17 15:30:29 来自手机 | 显示全部楼层 来自: 中国 移动
有哪几个开发商在开发前不先看看风水呢
回复 支持 反对

使用道具 举报

发表于 2020-9-18 08:41:58 | 显示全部楼层 来自: 河南省焦作市 联通
诚聘电话销售 发表于 2020-9-17 15:15
广州的小蛮腰广州塔
北京的大裤衩中信大厦
深圳的摩天大楼

这几个造型确实不怎么样,当住宅的话不怎么样呢
回复 支持 反对

使用道具 举报

发表于 2020-9-18 08:42:59 | 显示全部楼层 来自: 河南省焦作市 联通
伏羲谷 发表于 2020-9-17 15:30
有哪几个开发商在开发前不先看看风水呢

现在开发商为了省地,有时不会考虑大家的感受
回复 支持 反对

使用道具 举报

发表于 2020-9-18 09:46:33 来自手机 | 显示全部楼层 来自: 河南省新乡市 联通
丑牛,为什么帖子发不出去,好多天的都没发出去
回复 支持 反对

使用道具 举报

发表于 2020-9-18 14:36:55 | 显示全部楼层 来自: 河南省焦作市 联通
~明天 发表于 2020-9-18 09:46
丑牛,为什么帖子发不出去,好多天的都没发出去

一般的带图片发的快
回复 支持 反对

使用道具 举报

发表于 2020-9-23 10:15:14 来自手机 | 显示全部楼层 来自: 中国 移动
开发商想的更多是 有限土地盖更多的房子  
回复 支持 反对

使用道具 举报

发表于 2020-9-23 11:40:57 | 显示全部楼层 来自: 河南省郑州市 联通
wqpk 发表于 2020-9-23 10:15
开发商想的更多是 有限土地盖更多的房子

是啊,所以就不管什么了
回复 支持 反对

使用道具 举报

发表回复

您需要登录后才可以回帖 登录 | 注册 |

本版积分规则

返回顶部 关注微信 下载APP 返回列表